8690 Kerns Street

Suite Total SF Lease Rate Comments
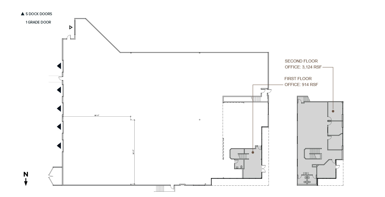
100 24,905 Call for Rate Details Approx. 3,395 SF of office, .50/2,000 GPM Sprinklers.Excellent image and functionality

Features

  • 24,905 RSF
  • 16% Office, Private Offices, Conference Room
  • 24’-26’ Minimum Clear Height
  • 56’ x 60’ Column Spacing
  • Parking Ratio 1.42/1,000 sf
  • Dock High Doors: 5
  • Grade Level Doors: 1
  • Fire Protection: Fully Sprinklered .50/2,000 GPM
  • Electrical: 3-phase service with 400 Amps of 277/480 volt power
  • Roof: Three ply built-up roofing system
  • Located within a HUB Zone, Enterprise Zone & Recycling Zone
  • Located in Foreign Trade Zone (FTZ) Magnet Site
Download Floor Plan PDF