Location
Overview
Availability
8690 Kerns Street
2660 Sarnen Street
Images
Contact
2660 Sarnen Street
Suite
Total SF
Lease Rate
Comments
100-101
• 41,750
Call for Rate Details
Private Office, Conference Room, Break Room
Features
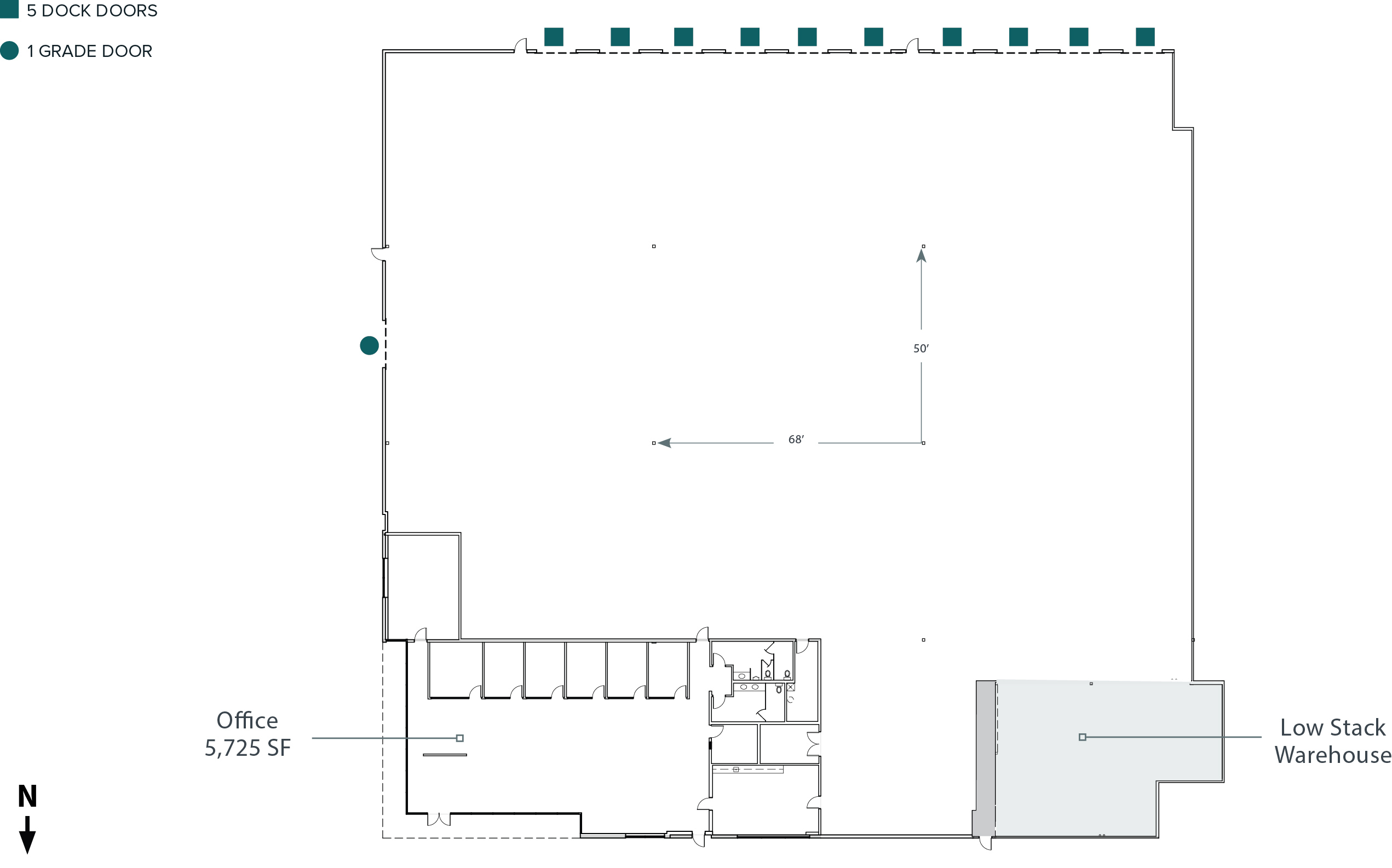
41,750 RSF Total
5,725 RSF of Office Space
24’-26’ Minimum Clear Height
Fully Sprinklered .50/2,000 SF GPM
Electrical: 3-phase service with 400 amps of 277/480 volt
Dock High Positions: 10
All dock positions come with hydraulic pit levelers, Dok-Loks and light communication kits.
Grade Level Doors: 1
Private Offices
Conference Room
Break Room
Close Proximity to Otay I Border Crossing
Located within FTZ Zone 153
Available 9/1/2026
Download Floor Plan PDF